10

Meenagrauv, Ballybofey, Co. Donegal

Farm. In the Region of. €50,000. Viewing Strictly by appointment

  • Property Ref: 4991

We are delighted to bring to the market this 6.8-acre agricultural smallholding. Rectangular in shape, the land’s southern boundary fronts onto the L66741, a quiet minor road, and gently slopes down to Cloughroe Burn, which defines its northern edge. The holding comprises mainly meadowland with an area of rough grazing.

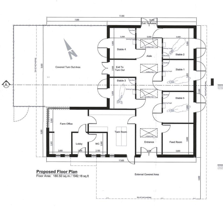
Full planning permission has been granted for the construction of a modern portal-framed shed together with a sand arena for equestrian use. The shed has been designed to accommodate five stables, feed storage, a tack room, office, and WC facilities.

This holding offers an excellent opportunity for those seeking a versatile agricultural or equestrian base. With interest already expressed, early viewing is strongly advised.

PROPERTY ACCOMMODATION
  • 6.8 acres